Działka w widokiem na Tatry i pozowleniem na budowę
- Lokalizacja
- Rdzawka
- Powierzchnia
- 1587 m2
- Cena
- 535 000 zł
Bartosz Łaś
Agent Nieruchomości
Tel: 888-535-255
Opis nieruchomości
Na sprzedaż wyjątkowa, inwestycyjna działka budowlana położona w malowniczej miejscowości Rdzawka, nieopodal Nowego Targu – w sercu Podhala, gdzie natura spotyka się z ogromnym potencjałem inwestycyjnym.
Parcela o powierzchni około 1553 m² zachwyca przede wszystkim swoim niepowtarzalnym położeniem. Z działki rozciąga się panoramiczny widok na majestatyczne Tatry, który każdego dnia może stanowić tło dla przyszłego domu lub inwestycji. Otoczenie zielonych terenów oraz bliskość Gorców gwarantują ciszę, prywatność i bezpośredni kontakt z naturą. To idealne miejsce zarówno do zamieszkania, jak i pod inwestycję turystyczną – szczególnie że tuż obok rozpoczynają się szlaki prowadzące m.in. na Stare Wierchy.
Nieruchomość posiada bardzo dogodną lokalizację komunikacyjną. Położenie przy ważnym węźle drogowym umożliwia szybki i komfortowy dojazd do Nowego Targu, a dalej do wszystkich atrakcji Podhala – w tym Zakopanego. W przeciwnym kierunku z łatwością wjedziemy na nową Zakopiankę, zapewniającą sprawne połączenie z Krakowem.
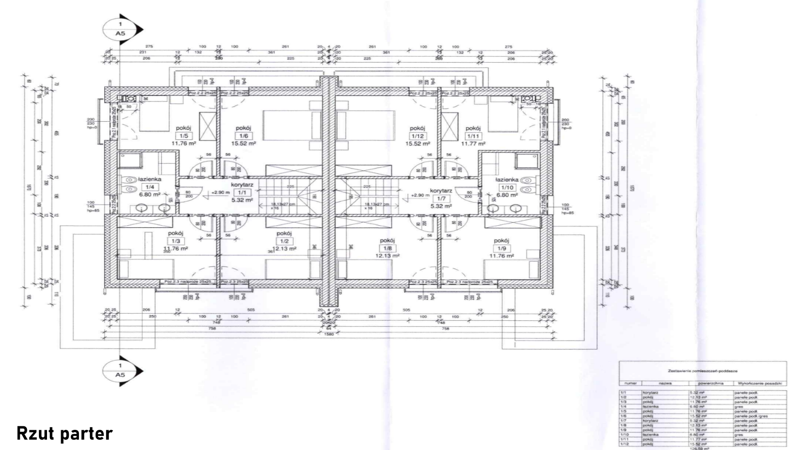
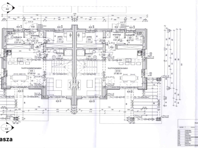
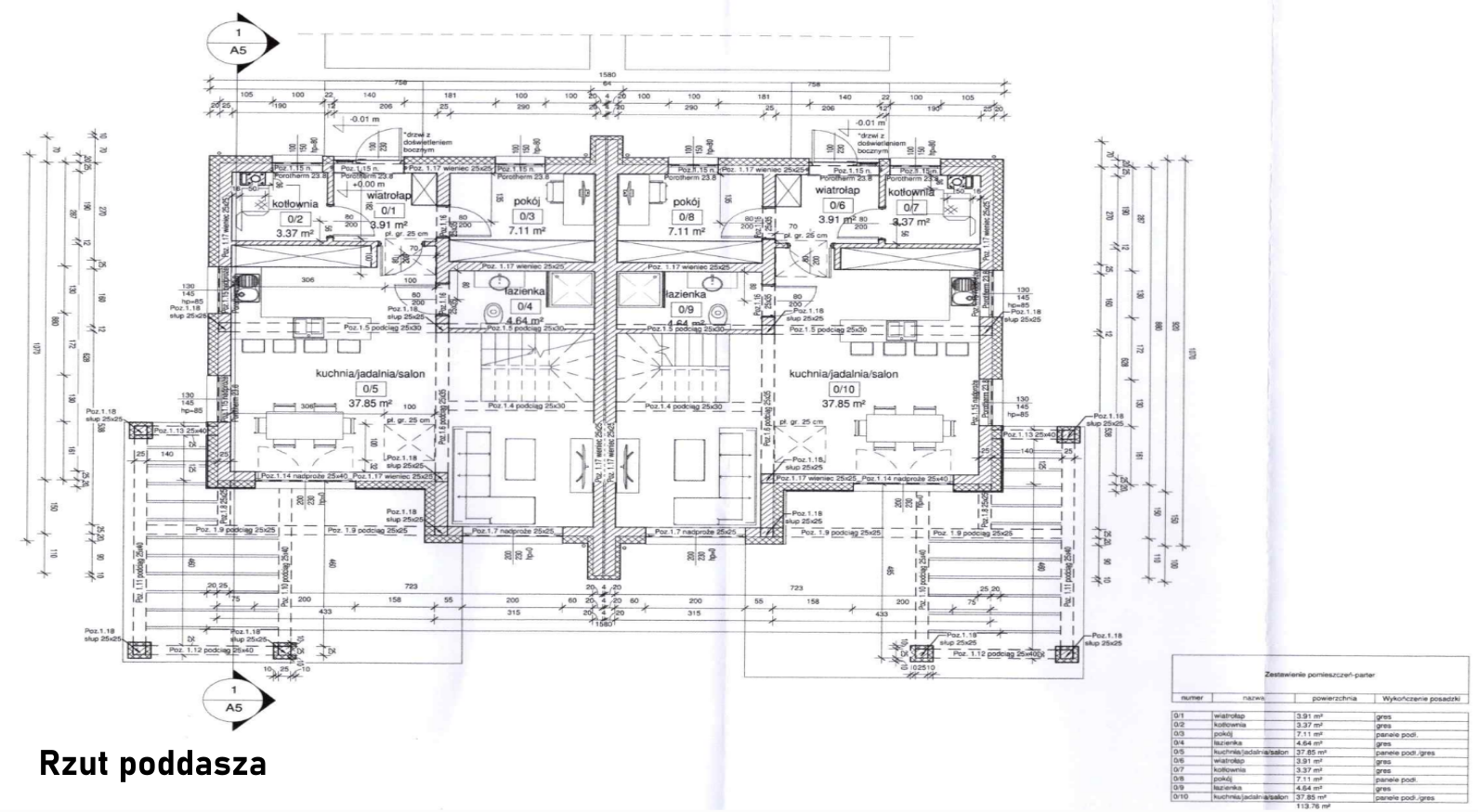
Działka posiada wydane Warunki Zabudowy, a także pozwolenie na budowę domu dwulokalowego typu bliźniak o łącznej powierzchni użytkowej około 240 m². To gotowy pomysł na inwestycję – projekt dostępny jest do wglądu podczas prezentacji. Dzięki temu przyszły właściciel może niemal natychmiast przystąpić do realizacji budowy, oszczędzając czas i formalności.
Dodatkowym atutem jest wydane przyłącze energetyczne – działka w najbliższym czasie zostanie uzbrojona w prąd, co jeszcze bardziej podnosi jej wartość i gotowość inwestycyjną.
Najważniejsze informacje:
Powierzchnia działki: ok. 1587 m²
Numer działki: 1746/5
Lokalizacja: Rdzawka (powiat nowotarski), w sąsiedztwie nr 134A
Współrzędne GPS: 49.547269 19.960793
Cena: 535 000 zł
To propozycja dla osób szukających miejsca z potencjałem – zarówno pod budowę domu w wyjątkowej scenerii, jak i pod inwestycję przynoszącą realne zyski.
Zapraszam na prezentację:
Bartosz Łaś
ul. Szaflarska 42, Nowy Targ
Opis sporządzony na podstawie informacji właściciela oraz oględzin nieruchomości. Może ulec aktualizacji i nie stanowi oferty w rozumieniu art. 66 i następnych Kodeksu cywilnego.














